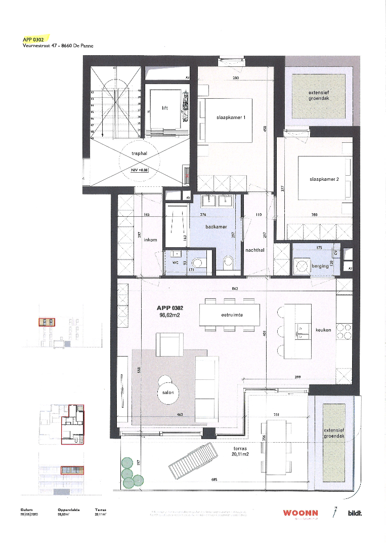
Residentie Silk 0302
Verkocht De Panne Veurnestraat 47 0302
Dakappartement in een nieuwbouwresidentie aan de rand van het centrum, vlakbij de winkelstraat, scholen, sportfaciliteiten, openbaar vervoer, strand en natuurgebieden.
Inkomhal met vestiaire, ruime woonkamer (± 25,80m²) met groot zuidgericht terras (± 20,10m²), een open ingerichte keuken met aangrenzende berging , 2 slaapkamers, badkamer met inloopdouche en dubbele wastafel, een apart toilet en een nachthal.
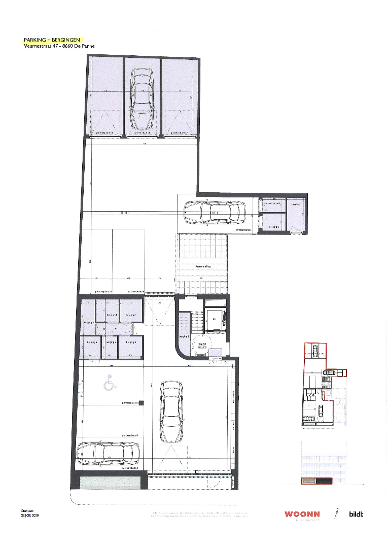
Het is mogelijk om een berging, parkeerplaats of garage in de residentie bij te kopen - Gemeenschappelijke fietsenberging - Privatieve tellers - Volledig geïsoleerd.
Inkomhal met vestiaire, ruime woonkamer (± 25,80m²) met groot zuidgericht terras (± 20,10m²), een open ingerichte keuken met aangrenzende berging , 2 slaapkamers, badkamer met inloopdouche en dubbele wastafel, een apart toilet en een nachthal.
Het is mogelijk om een berging, parkeerplaats of garage in de residentie bij te kopen - Gemeenschappelijke fietsenberging - Privatieve tellers - Volledig geïsoleerd.