Residentie Silk P6
Verkocht De Panne Veurnestraat 47 P6
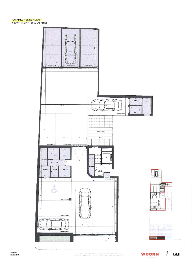
Parkeerplaats in een nieuwbouwresidentie aan de rand van het centrum, vlakbij de winkelstraat, scholen, sportfaciliteiten, openbaar vervoer, strand en natuurgebieden.
De parkeerplaats is gekoppeld aan berging 2.
De parkeerplaats is gekoppeld aan berging 2.