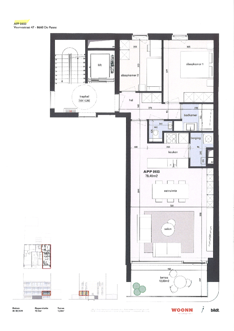
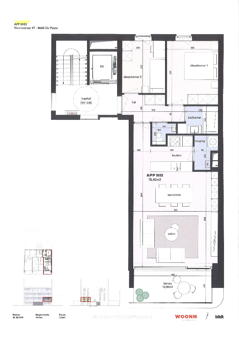
Residentie Silk 0103
Verkocht De Panne Veurnestraat 47 0103
Appartement in een nieuwbouwresidentie aan de rand van het centrum, vlakbij de winkelstraat, scholen, sportfaciliteiten, openbaar vervoer, strand en natuurgebieden.
Inkom, ruime woonkamer (± 28m²) met zuidgericht terras (± 12m²), een open ingerichte keuken met aangrenzende berging , 2 slaapkamers, badkamer met inloopdouche en wastafel en een apart toilet.
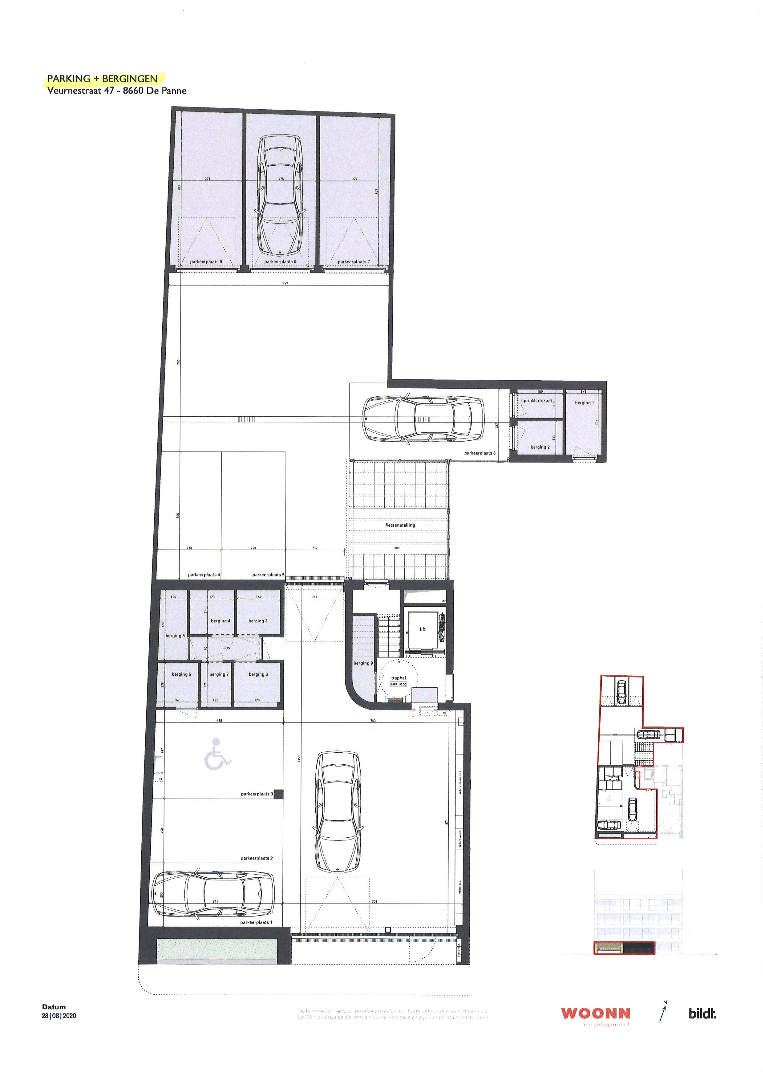
Het is mogelijk om een berging, parkeerplaats of garage in de residentie bij te kopen - Gemeenschappelijke fietsenberging - Privatieve tellers - Volledig geïsoleerd.
Inkom, ruime woonkamer (± 28m²) met zuidgericht terras (± 12m²), een open ingerichte keuken met aangrenzende berging , 2 slaapkamers, badkamer met inloopdouche en wastafel en een apart toilet.
Het is mogelijk om een berging, parkeerplaats of garage in de residentie bij te kopen - Gemeenschappelijke fietsenberging - Privatieve tellers - Volledig geïsoleerd.