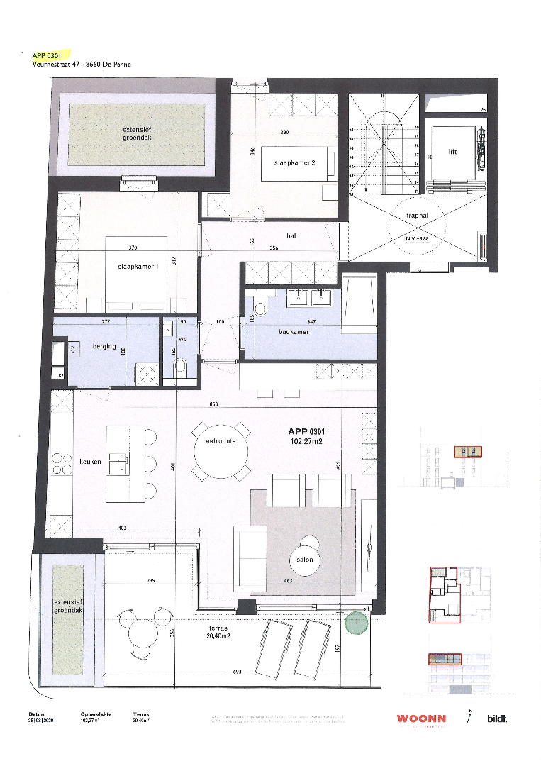
Résidence Silk 0301
Vendu De Panne Veurnestraat 47 0301
Appartement du toit dans une résidence de nouvelle construction au bord du centre, près de la rue commercante, les écoles, les facilités du sport, du transport en commun, la plage et les réserves naturelles.
Hall d'entrée avec vestiaire, living spacieux (± 29m²) avec terrasse exposée sud (± 20,40m²), une cuisine équipée ouverte avec débarras adjacente, 2 chambres à coucher, salle de bains avec douche à l'italien et double lavabo et une toilette séparée.
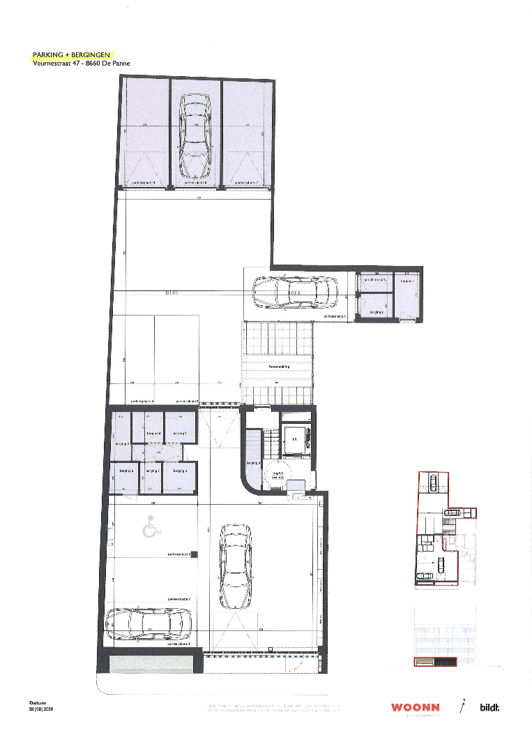
Il est possible d'acheter en plus un débarras, parking ou garage dans la résidence - Local à vélos commun - Compteurs privatifs - Complètement isolé.
Hall d'entrée avec vestiaire, living spacieux (± 29m²) avec terrasse exposée sud (± 20,40m²), une cuisine équipée ouverte avec débarras adjacente, 2 chambres à coucher, salle de bains avec douche à l'italien et double lavabo et une toilette séparée.
Il est possible d'acheter en plus un débarras, parking ou garage dans la résidence - Local à vélos commun - Compteurs privatifs - Complètement isolé.