Résidence Akina W001
Prix demandé
Spacieux local commercial brut dans la résidence Akina, au centre de La Panne, à proximité de la plage et des transports en commun.
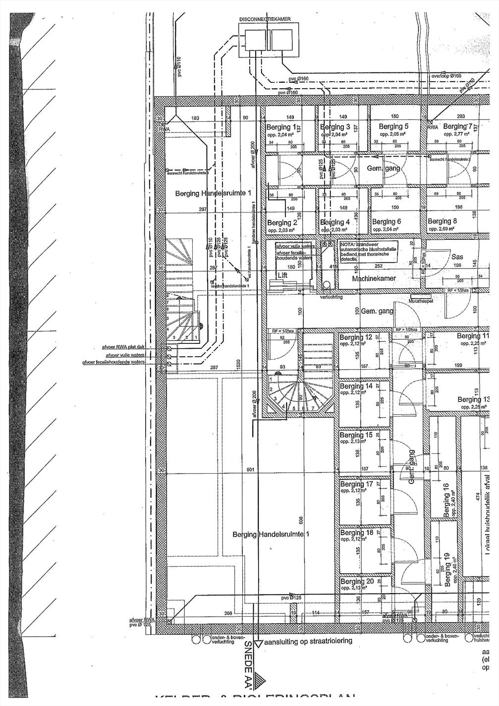
Espace commercial avec 8,40m de fenêtre, une espace cuisine avec un débarras, une toilette et une grande cave.
Surface du local commercial : 162 m²
Surface de la cave: 67.87 m²
Espace commercial avec 8,40m de fenêtre, une espace cuisine avec un débarras, une toilette et une grande cave.
Surface du local commercial : 162 m²
Surface de la cave: 67.87 m²