Résidence Silk P9
Vendu De Panne Veurnestraat 47 P9
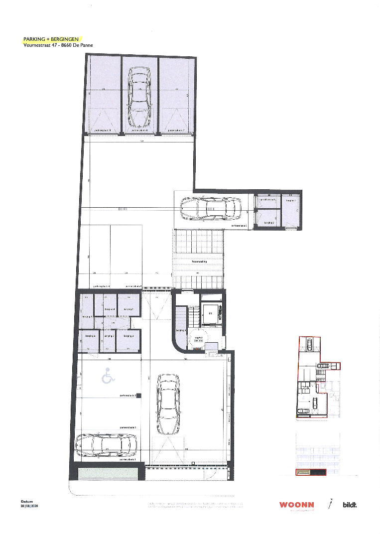
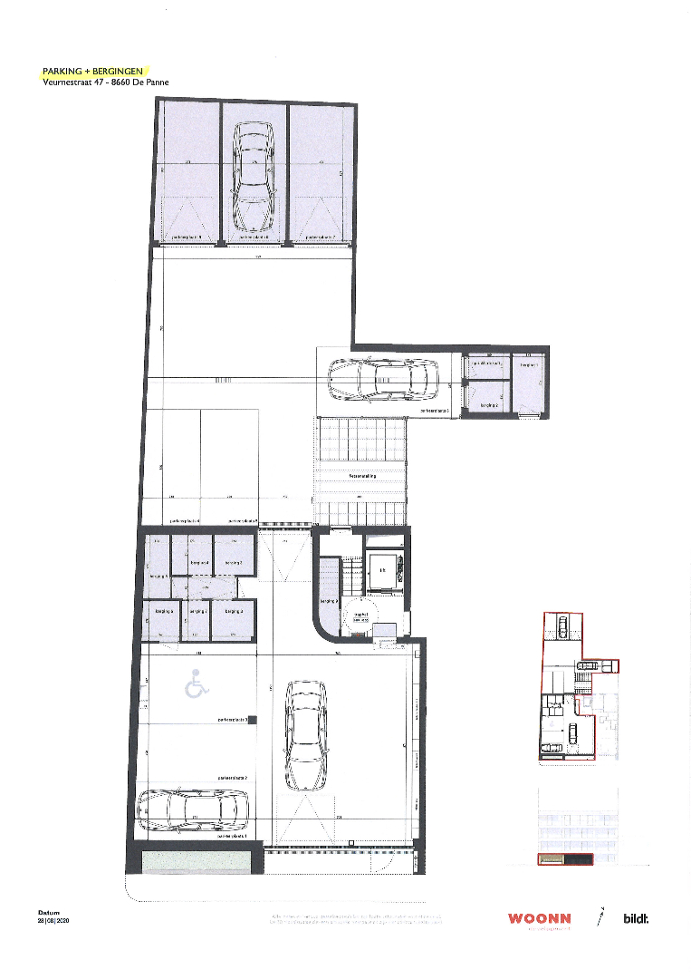
Box de garage dans une résidence de nouvelle construction au bord du centre, près de la rue commercante, les écoles, les facilités du sport, du transport en commun, la plage et les réserves naturelles.
Le garage a une superficie de ± 16,63m² (± 2,75m x ± 6,05m).
Le garage a une superficie de ± 16,63m² (± 2,75m x ± 6,05m).