Résidence Silk P3
Vendu De Panne Veurnestraat 47 P3
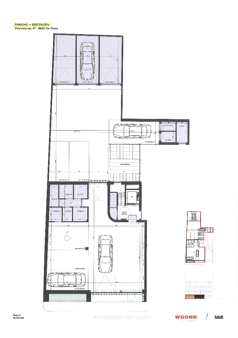
Emplacement de parking couverte dans une résidence de nouvelle construction au bord du centre, près de la rue commercante, les écoles, les facilités du sport, du transport en commun, la plage et les réserves naturelles.
Le parking / garage a une superficie de ± 17,35m² (± 3,47m x ± 5,00m).
Le parking est connecté à débarras 6.
Le parking / garage a une superficie de ± 17,35m² (± 3,47m x ± 5,00m).
Le parking est connecté à débarras 6.