Résidence Silk 0202
Vendu De Panne Veurnestraat 47 0202
Appartement dans une résidence de nouvelle construction au bord du centre, près de la rue commercante, les écoles, les facilités du sport, du transport en commun, la plage et les réserves naturelles.
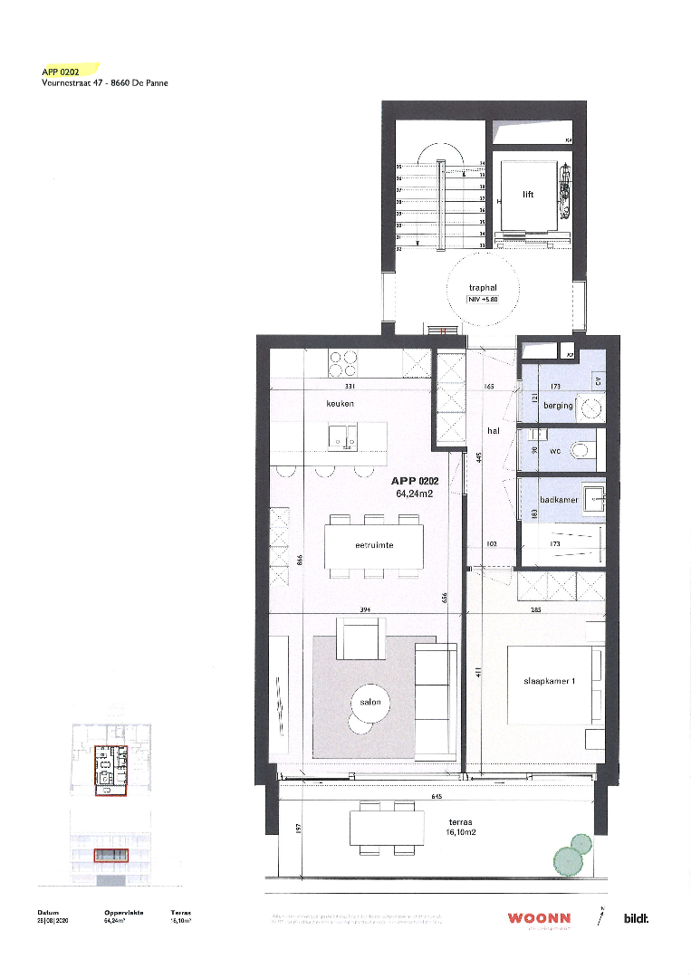
Hall d'entrée avec vestiaire, living spacieux (± 25,80m²) avec terrasse exposée sud (± 16,10m²), une cuisine équipée ouverte, 1 chambre à coucher, salle de bains avec douche à l'italien et lavabo, une toilette séparée et un débarras.
Il est possible d'acheter en plus un débarras, parking ou garage dans la résidence - Local à vélos commun - Compteurs privatifs - Complètement isolé.
                        
                    
                Hall d'entrée avec vestiaire, living spacieux (± 25,80m²) avec terrasse exposée sud (± 16,10m²), une cuisine équipée ouverte, 1 chambre à coucher, salle de bains avec douche à l'italien et lavabo, une toilette séparée et un débarras.
Il est possible d'acheter en plus un débarras, parking ou garage dans la résidence - Local à vélos commun - Compteurs privatifs - Complètement isolé.
